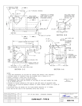
Type B Curb Inlet

The Type B Curb Inlet sits behind the curb. The 24" light traffic ring and cover sit in the sidewalk behind the curb. This structure has a 4' x 4' core that will extend full height from the pipe to the curb. This Curb Inlet collects water from the gutter and drains into pipe below. Typically it will have one pipe coming out of it, but may have more pipes if necessary. The Type B Curb Inlet can also have one, or two wings. The purpose of the wings is to create a larger opening in the curb for a higher volume of water. Typically you will see these on, or at the bottom of, hills. They would be known as a Type B1, or Type B2 for one or two wings respectively.